
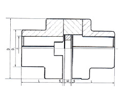
| 基 本 尺 寸 | 額定負荷 | 內六角螺 釘 | 螺釘的擰緊力矩MAN·m | 脹套與軸結合面上的壓力Pf N/mm2 | 脹套與輪轂結合面上的壓力Pf′N/mm2 | 重量kg | |||||||||||||||||||||||||||||||
| d | D | d0 | L0 | L | L1 | L2 | D1 | D2 | 轉矩 M1KN·m | 軸向力 F1 KN | |||||||||||||||||||||||||||
| mm | |||||||||||||||||||||||||||||||||||||
| 裝配形式 | A | B | A | B | d1 | n | A | B | A | B | |||||||||||||||||||||||||||
| 14 15 | 23 24 | 28.5 32 | 23 29 | 14 16 | 26 36 | 30 42 | 38 45 | 33 40 | 108 285 | 68 179 | 15.5 35.5 | 9.7 22.4 | M4 M6 | 4 4 | 4.9 17 | 210 307 | 132 193 | 128 219 | 80 138 | 0.15 0.26 | |||||||||||||||||
| 16 18 19 20 22 | 24 26 27 28 32 | 32 34 35 36 40 | 29 34 34 34 41 | 16 18 18 18 25 | 36 41 41 41 48 | 42 47 47 47 54 | 45 47 49 50 54 | 40 42 43 44 48 | 285 320 335 350 353 | 179 200 212 224 231 | 35.5 35.5 35.5 35.5 35.5 | 22.4 22.4 22.4 22.4 22.4 | M6 M6 M6 M6 M6 | 4 4 4 4 4 | 17 17 17 17 17 | 328 290 276 262 155 | 206 184 174 165 101 | 219 202 195 187 106 | 138 127 122 118 69 | 0.25 0.27 0.30 0.30 0.38 | |||||||||||||||||
| 24 25 28 30 32 | 34 34 39 41 43 | 42 42 47 49 51 | 41 41 41 41 41 | 25 25 25 25 25 | 48 | 54 54 54 54 54 | 56 56 61 62 65 | 50 50 55 57 59 | 636 665 745 795 1136 | 400 420 470 500 715 | 53.4 53.4 53.4 53.4 71.3 | 33.6 33 6 33.6 33.6 44.8 | M6 M6 M6 M6 M6 | 6 6 6 6 8 | 17 17 17 17 17 | 237 228 204 189 237 | 149 143 128 119 149 | 167 167 146 139 177 | 105 105 92 87 111 | 0.40 0.39 0.47 0.48 0.52 | |||||||||||||||||
| 35 38 40 42 | 47 50 53 55 | 54 58 61 63 | 45 45 45 45 | 32 | 52 52 52 52 | 58 58 58 58 | 69 72 75 78 | 62 66 69 71 | 1160 1223 1287 1352 | 735 797 840 881 | 71.3 71.3 71.3 71.3 | 44.8 44.8 44.8 44.8 | M6 M6 M6 M6 | 8 8 8 8 | 17 17 17 17 | 152 140 133 127 | 99 92 87 82 | 114 106 100 102 | 74 70 66 66 | 0.63 0.67 0.74 0.78 | |||||||||||||||||
| 45 48 50 | 59 62 65 | 69.5 71.5 75.5 | 64 64 64 | 45 45 45 | 72 72 72 | 80 80 80 | 86 87 92 | 80 81 86 | 2677 2855 2975 | 1745 1860 1940 | 119 119 119 | 77.6 77.6 77.6 | M8 M8 M8 | 8 8 8 | 41 41 41 | 155 145 140 | 102 95 92 | 119 113 108 | 78 74 70 | 1.23 1.24 1.40 | |||||||||||||||||
55 | 71 77 84 | 81.5 87.5 94.5 | 74 74 74 | 55 55 55 | 82 82 82 | 90 90 90 | 98 104 111 | 92 98 105 | 3680 4015 4350 | 2400 2620 2840 | 133 133 133 | 87.2 87.2 87.2 | M8 M8 M8 | 9 9 9 | 41 41 41 | 117 107 1O0 | 77 70 65 | 91 84 77 | 60 55 55 | 1.70 1.90 2.20 | |||||||||||||||||
70 | 90 95 100 106 112 | 101.5 107 112.5 118.5 124.5 | 87 87 87 87 87 | 65 | 97 97 97 97 97 | 107 107 107 107 107 | 119 126 131 137 144 | 113 119 125 131 137 | 7440 7970 11335 12040 12750 | 4850 5200 7390 7850 8320 | 212 212 283 283 283 | 139 139 184 184 184 | M1O M1O M1O M1O M1O | 9 9 12 12 12 | 83 83 83 83 83 | 123 114 144 135 128 | 81 75 94 88 83 | 96 91 115 108 102 | 63 59 75 71 67 | 3.05 3.32 3.50 3.81 4.20 | |||||||||||||||||
| 注:Z11型脹緊聯結套螺栓的機械性能等級為12.9級。 | |||||||||||||||||||||||||||||||||||||
Z11型脹緊聯結套
掃描二維碼分享到微信